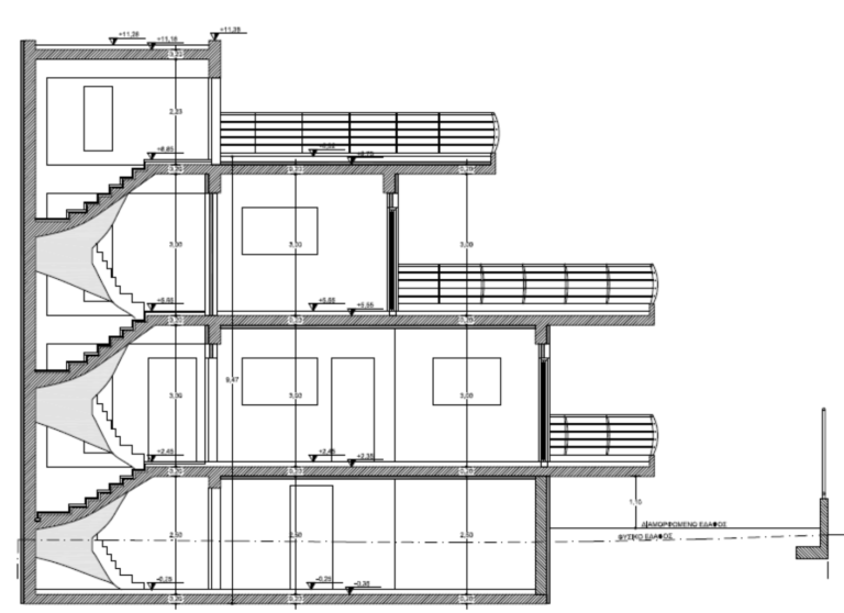
Θέρμη, Θεσσαλονίκης

Permanent residences

The project is located in the area of Thermi in Thessaloniki, Municipality of Thermi. It is at the stage of architectural design.

Scroll to Top