Nature studios & Maisonette’s
Nea Kallikrateia, Chalkidiki










































































































We present you the Nature Studio & Maisonette’s, a unique residential complex in the Nea Kallikrateia Chalkidiki, designed to combine elegance with comfort.
The project incorporates modern design and high functionality, ideal for both holiday home and investment.
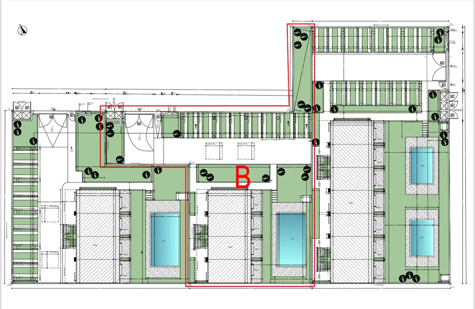
Περιλαμβάνει πέντε ανεξάρτητες ενότητες κατοικιών (Μπλοκ Α, Β, Γ, Δ, Ε) με διαφορετικές επιλογές διαμερισμάτων και μεζονετών.
Not available. Sold out – in just 4 months!
Not available. Sold out – in just 4 months!
Not available. Sold out – in just 4 months!
Available for Presale – Block E can be configured as a maisonette, combining the ground floor and first floor with two bedrooms and two parking spaces.
Price: 185.000€
Also
Available studios on the first floor
Area: 35 sq.m.
Price: 95.000€
Available studios on ground floor
Area: 35 sq.m.
Price: 105.000€
Start of construction: June 2026
Project completion:
August 2027
Not Available Yet - Μπλοκ Ε can be configured as maisonette, combining the ground and first floor with two bedrooms and two parking spaces.
- Price: 185.000€
Also
- Available Studios on the first floor
- Area: 35 sq/m
- Price: 95.000€
- Available Studios on the ground floor
- Area: 35 sq/m
- Price: 105.000€
- Available Studios on the first floor
Start of construction: June 2026
Project completion:
August 2027
